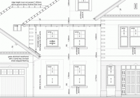
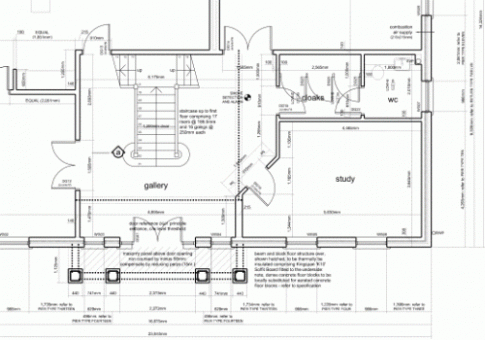
Oakdene, Cheshire
Keep an eye out for pictures of this recently completed development.
Another large new build dwelling that we’re proud to be associated with.
This replacement dwelling required expert guidance through a tricky planning process. A bold modern Edwardian style building incorporating the use of ‘softer’ appropriate materials to allow a building with such impressive scale and proportion to blend sensitively with its environment.
Dickinson Waugh’s ability to adhere to a strict brief whilst understanding and designing within policy guidelines is perfectly illustrated with this fine project.












